Skip to main content
You're logged in with MyAlex  |  Logout

City of Alexandria, VA

Search results cleared

Include archived pages
Most of the content here is written in English. Translate your search to find more content? Translating "" to English... Searching for English phrase ""
  • Live
  • Play
  • Services
  • Business
  • Government
  • Projects & Plans
  • Calendar
  • I want to…

Waterfront Pump Station

Page updated on September 10, 2025 at 6:48 PM

Related Content

  • The Alexandria Waterfront
  • Waterfront Flood Mitigation Project (WFMP)
    • Project Design
      • Design Overview
      • Point Lumley Park
      • Waterfront Park
      • Waterfront Pump Station
      • King Street-Strand Street Pedestrian Area
      • Chart House-Thompsons Alley Bulkhead
      • Founder's Park
    • Waterfront Procurement
    • Waterfront Document Library
    • Waterfront Community Engagement
    • Waterfront Project History
    • Waterfront Common Design Elements
  • Waterfront Programming and Amenities
    • Waterfront Programs, Activities, and Amenities
    • Historic Waterfront Buildings
    • Public Art at Waterfront Park
    • Torpedo Factory Arts Center
    • Waterfront Archeology
    • Waterfront Park
    • Waterfront Ship Stabilization
    • Windmill Hill Park
  • Waterfront Commission
  • Waterfront Small Area Plan

Share

Bluesky Share on Facebook Share on X Share via Email
Translate icon
Translate icon
XWARNING: You have chosen to translate this page using an automated translation system. This translation has not been reviewed by the City of Alexandria and may contain errors.
Design Update Text Box

The Waterfront Flood Mitigation Project team is working diligently to evaluate and incorporate constructive pump station design feedback into the project design, as well as explore options for reducing the impact to Waterfront Park, with a continued goal of reducing impacts and maximizing park space for the benefit of residents, businesses, and visitors.

The design team announced on September 3 that preliminary reductions in the building footprint are progressing. The team anticipates being able to reduce the building's length by approximately 18 - 22 ft., and/or the total structure by about 55 ft. if the building canopy is eliminated from the design as well. 

In response to community feedback, the architectural design team is focusing on evaluating and exploring refine the building's exterior details. Additional updates on this aspect of the pump station design are coming soon. 

The landscape architecture team is developing alternative designs for Waterfront Park that take the new, smaller footprint into account and replace hardscaping with additional green space. View those designs on the Waterfront Park webpage.

What do you think of the reduced footprint? Use the link below to submit feedback on these designs to the Waterfront Flood Mitigation Team.

Submit Feedback Button
Two images of the pump station, including the existing design and new smaller footprint.
Comparison of the prior pump station design with the approximate shape of the newly reduced footprint structure.
of
Grid View Close Modal
Two images of the pump station, including the existing design and new smaller footprint.
Comparison of the prior pump station design with the approximate shape of the newly reduced footprint structure.

Waterfront Pump Station

The following images are artist renderings depicting the current Pump Station design as of Spring 2025. The renderings and design concepts presented are currently under development, for conceptual reference only, and subject to change and design progresses. Additional information about current conditions and proposed design elements can be found in the sections below. 

Rendering looking south at the Waterfront Park Pump Station.
Rendering looking south at the Waterfront Park Pump Station at night.
Rendering looking north west at the Waterfront Park Pump Station.
Rendering looking north west at the Waterfront Park Pump Station.
Rendering of the Waterfront Park Pump Station from higher elevation.
Rendering of the Waterfront Park Pump Station.
Rendering looking south at the Waterfront Park Pump Station.
Rendering looking south at the Waterfront Park Pump Station.
Rendering looking south at the Waterfront Park Pump Station.
Rendering of the Waterfront Park Pump Station corner.
Rendering of the Waterfront Park Pump Station corner.
of
Grid View Close Modal
Rendering looking south at the Waterfront Park Pump Station.
Rendering of the Proposed Waterfront Pump Station Design:

Daytime view of Waterfront Park and the Pump Station from the walkway on the north side of Waterfront Park.
Rendering looking south at the Waterfront Park Pump Station at night.
Rendering of the Proposed Waterfront Pump Station Design:

Evening view of Waterfront Park and the Pump Station from the walkway on the north side of Waterfront Park.
Rendering looking north west at the Waterfront Park Pump Station.
Rendering of the Proposed Waterfront Pump Station Design:

Daytime view of the Prince Street Pedestrian Plaza and Pump Station from the promenade.
Rendering looking north west at the Waterfront Park Pump Station.
Rendering of the Proposed Waterfront Pump Station Design:

Evening view of the Prince Street Pedestrian Plaza and Pump Station from the promenade.
Rendering of the Waterfront Park Pump Station from higher elevation.
Rendering of the Proposed Waterfront Pump Station Design:

Elevated view of the metal scrim on the Pump Station.
Rendering of the Waterfront Park Pump Station.
Rendering of the Proposed Waterfront Pump Station Design:

View of the metal scrim canopy on the Pump Station from the Prince Street Pedestrian Plaza.
Rendering looking south at the Waterfront Park Pump Station.
Rendering of the Proposed Waterfront Pump Station Design:

View of the Pump Station and Waterfront Park from the current parking strip on Strand Street.
Rendering looking south at the Waterfront Park Pump Station.
Rendering of the Proposed Waterfront Pump Station Design:

View of the Pump Station and Prince Street Pedestrian Plaza from the intersection of Prince Street and Strand Street.
Rendering looking south at the Waterfront Park Pump Station.
Rendering of the Proposed Waterfront Pump Station Design:

View of the Pump Station and western Waterfront Park from Strand Street at the Old Dominion Boat Club.
Rendering of the Waterfront Park Pump Station corner.
Rendering of the Proposed Waterfront Pump Station Design:

View of the Pump Station northwest corner from Waterfront Park and the West Plaza.
Rendering of the Waterfront Park Pump Station corner.
Rendering of the Proposed Waterfront Pump Station Design:

View of the Pump Station southwest corner from Waterfront Park and the Prince Street Pedestrian Plaza.

Existing Conditions

Street-level view of Waterfront Park and Prince Street from the Tallship.
Street-level view of Waterfront Park from Prince Street at the promenade..
Street-level view of Waterfront Park and Strand Street from Prince Street.
Street-level view of Waterfront Park lawn from King Street Park.
of
Grid View Close Modal
Street-level view of Waterfront Park and Prince Street from the Tallship.
Waterfront Park Existing Conditions:

Looking south at Waterfront Park and Prince Street from the Tallship Providence and promenade.
Street-level view of Waterfront Park from Prince Street at the promenade..
Waterfront Park Existing Conditions:

Looking north at Waterfront Park and Prince Street from the promenade at the foot of Prince Street.
Street-level view of Waterfront Park and Strand Street from Prince Street.
Waterfront Park Existing Conditions:

Looking north at Waterfront Park across Prince Street.
Street-level view of Waterfront Park lawn from King Street Park.
Waterfront Park Existing Conditions:

Looking south at Waterfront Park and Prince Street from the mid-park path from King Street Park.

Proposed Building Plans

Building concept sketch for the Waterfront Park Pump Station design.
Building concept sketch elevations for the Waterfront Park Pump Station design.
Current Waterfront Park Pump Station design building elevations.
Current Waterfront Park Pump Station design building elevations.
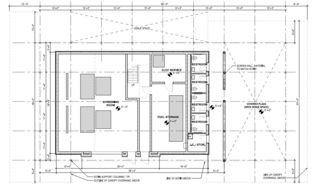
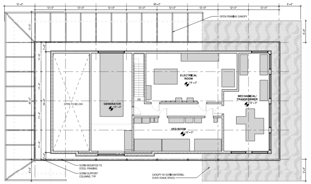
Current Waterfront Park Pump Station first floor plan.
Current Waterfront Park Pump Station second floor plan.
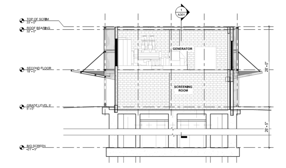
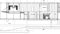
Current Waterfront Park Pump Station design building cross section.
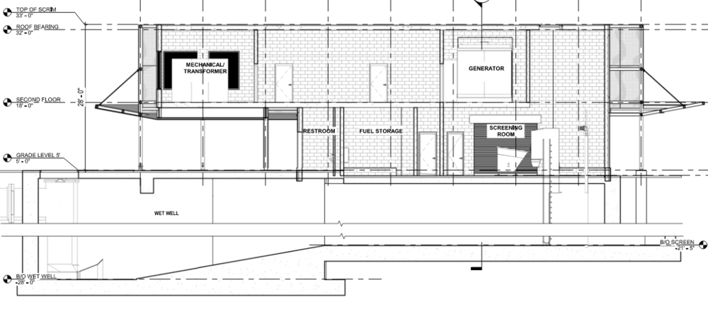
Current Waterfront Park Pump Station design building cross section.
of
Grid View Close Modal
Building concept sketch for the Waterfront Park Pump Station design.
Concept Sketch:

Initial Concept Sketch - 3D view
Building concept sketch elevations for the Waterfront Park Pump Station design.
Concept Sketch:

Initial Concept Sketch - North Elevation
Current Waterfront Park Pump Station design building elevations.
Concept Sketch:

Initial Concept Sketch - East Elevation
Current Waterfront Park Pump Station design building elevations.
Pump Station Elevation:

North and East Elevations
Current Waterfront Park Pump Station first floor plan.
Pump Station Elevations:

First Floor Plan
Current Waterfront Park Pump Station second floor plan.
Pump Station Elevations:

Second Floor Plan
Current Waterfront Park Pump Station design building cross section.
Pump Station Elevations:

Cross Section
Current Waterfront Park Pump Station design building cross section.
Pump Station Elevations:

Longitudinal Cross Section

Design Concepts

The following images illustrate key concepts informing the current pump station design.

Design inspiration used in the Waterfront Park Pump Station design.
Architectural inspiration for the Waterfront Park Pump Station design.
Architectural inspiration for the Waterfront Park Pump Station design.
Design inspiration used in the Waterfront Park Pump Station design.
Architectural inspiration for the Waterfront Park Pump Station design.
Architectural inspiration for the Pump Station design.
Architectural inspiration for the Waterfront Park Pump Station design.
Design inspiration used in the Waterfront Park Pump Station design.
Building materials informing the Pump Station design.
Building inspiration image used in the Waterfront Park Pump Station design.
Building inspiration image used in the Waterfront Park Pump Station design.
Building inspiration image used in the Waterfront Park Pump Station design.
of
Grid View Close Modal
Design inspiration used in the Waterfront Park Pump Station design.
Architectural Concepts:

Emphasis on horizontal grid lines within existing Old Town and the reflection of that image in local art
Architectural inspiration for the Waterfront Park Pump Station design.
Architectural Concepts:

Emphasis on horizontal grid lines within existing Old Town and the reflection of that image in local art
Architectural inspiration for the Waterfront Park Pump Station design.
Architectural Concepts:

Emphasis on horizontal grid lines within existing Old Town and the reflection of that image in local art
Design inspiration used in the Waterfront Park Pump Station design.
Architectural Concepts:

Emphasis on horizontal elements through glazing and structural design
Architectural inspiration for the Waterfront Park Pump Station design.
Architectural Concepts:

Surrounding buildings with various methods of horizontal lines through material breaks, introduction of color, and patterning
Architectural inspiration for the Pump Station design.
Architectural Concepts:

Surrounding buildings with various methods of horizontal lines through material breaks, introduction of color, and patterning
Architectural inspiration for the Waterfront Park Pump Station design.
Architectural Concepts:

Surrounding buildings with various methods of horizontal lines through material breaks, introduction of color, and patterning
Design inspiration used in the Waterfront Park Pump Station design.
Architectural Concepts:

Surrounding buildings with various methods of horizontal lines through materials and massing.
Building materials informing the Pump Station design.
Architectural Concepts:

Building inspiration image used in the Waterfront Park Pump Station design.
Architectural Concepts:

Section of a typical waterfront retaining wall
Building inspiration image used in the Waterfront Park Pump Station design.
Architectural Concepts:

Image of a typical waterfront retaining wall.
Building inspiration image used in the Waterfront Park Pump Station design.
Architectural Concepts:

Corrugated metal as architectural element

Design Precedents

The following images illustrate how these key design concepts appear when implemented.

Precedent image used in the Waterfront Park Pump Station design.
Precedent image used in the Waterfront Park Pump Station design.
Precedent image used in the Waterfront Park Pump Station design.
Precedent image used in the Waterfront Park Pump Station design.
Precedent image used in the Waterfront Park Pump Station design.
Precedent image used in the Waterfront Park Pump Station design.
Precedent image used in the Waterfront Park Pump Station design.
Precedent image used in the Waterfront Park Pump Station design.
of
Grid View Close Modal
Precedent image used in the Waterfront Park Pump Station design.
Design Precedents:

Architecture as a backdrop to the park
Precedent image used in the Waterfront Park Pump Station design.
Design Precedents:

Low maintenance natural materials
Precedent image used in the Waterfront Park Pump Station design.
Design Precedents:

Canopy and plaza
Precedent image used in the Waterfront Park Pump Station design.
Design Precedents:

Integration of architecture, landscape, and public space
Precedent image used in the Waterfront Park Pump Station design.
Design Precedents:

Metal scrim and relationship to architectural facade
Precedent image used in the Waterfront Park Pump Station design.
Design Precedents:

Night-time illumination scrim as visual beacon
Precedent image used in the Waterfront Park Pump Station design.
Design Precedents:

Scrim in relationship to streetscape
Precedent image used in the Waterfront Park Pump Station design.
Design Precedents:

Scrim as visual narrative

Building Materials

Building materials informing the Pump Station design.
Building materials informing the Pump Station design.
Building materials informing the Pump Station design.
Building materials informing the Pump Station design.
Building materials informing the Pump Station design.
of
Grid View Close Modal
Building materials informing the Pump Station design.
Building Materials:

Board-formed concrete panel to reference historic cribbing
Building materials informing the Pump Station design.
Building Materials:

Pre-cast concrete panel mold to product reference
Building materials informing the Pump Station design.
Building Materials:

Scrim material inspiration
Building materials informing the Pump Station design.
Building Materials:

Column as a device to represent nautical surrounds
Building materials informing the Pump Station design.
Building Materials:

Structural techtonics and relationship to sail boats

Storm Sewer System Replacement and Improvement

A network of new large stormwater pipes will be installed under portions of Union Street, Strand Street, Duke Street, Prince Street, King Street, Cameron Street, and Thompsons Alley, and will replace the existing undersized and aging sewer pipes. The new system will convey water from flood-prone areas along Alexandria's Waterfront to the new pump station, and then out into the Potomac River. 

Diagram of Waterfront Storm Sewer Pipes

The red lines indicate where existing and new pipes will be placed to facilitate the conveyance of storm water from inland areas to the Potomac River.

Pump Station Design History

The following section documents the web content previously posted about the Pump Station design development.

Pump Station Structure

The City determined that a single pump station will perform and provide the level of service necessary to satisfy the project objectives. The structure must comply with building codes, meet certain floodproofing, structural integrity, and maintenance access requirements to operate correctly, as well as reflect industry best practices for resiliency and redundancy for critical infrastructure. The final design will also reflect input from Alexandria Board of Architectural Review. 

The project team will continue to evolve the design to minimize park and visual impacts while integrating the facility and important program support services into the public space. 

Pump Station Location

Pump Station Location

Pump Station Features:

  • Performance of two pump stations in one location
  • Public restrooms
  • Electric power for park programs
  • Opportunity to provide other City event facilities

 

The City considered two orientations for the pump station in Waterfront Park: 1) along Strand Street and 2) along Prince Street. The following images illustrate examples of how the pump station could integrate into the landscape of Waterfront Park. Additional information about the Waterfront Park location options can be found in the November 25, 2024, Public Meeting Presentation and display boards available on the Waterfront Flood Mitigation Community Engagement webpage.

 

Strand Street Orientation

Rendering of Pump Station and Waterfront Park landscape design concept 1A.

 

Prince Street Orientation

Rendering of Pump Station and Waterfront Park landscape design concept 2A.

 

* All designs are drafts, deliberative, and pre-decisional. 

Alternative Locations Analysis

In addition to Waterfront Park, the City analyzed four potential pump station locations: 110 South Union Street, 1 Prince Street, 2 and 6 Prince Street, and Point Lumley Park Parking Lot. Read the September 9, 2024 memorandum to City Council regarding this analysis, watch the January 28, 2025 presentation to City Council on pump station alternatives (presentation starts at 2:56:39), and/or download the City Council presentation. 

 

Stormwater Conveyance

Rendering of Waterfront Project area showing location of a pump station and stormwater conveyance system
The new stormwater conveyance system and pump station will be constructed in the area marked by the orange dashed line.
  • Capital Improvement Program
  • Flooding
  • Public Facility
  • Public Works
  • Sewers
  • Stormwater
  • Utilities
  • Water
  • Waterfront
Contact Us
Alex311 | 703.746.4311
Follow Us
  • BlueSky
  • Facebook
  • X
  • YouTube
Visitor Information

VisitAlexandriaVA.com

  • Jobs
  • Payments
  • Departments
  • Newsroom
  • Social Media
  • Emergency Hotlines
  • Accessibility
  • FOIA Requests
  • Privacy & Legal

Alexandria City Hall
301 King Street
Alexandria, VA 22314

City of Alexandria Seal
© 1995–2023 City of Alexandria, VA and others.
Hold on, redirecting...